
概述
沸騰干燥器,又稱流化床,自應用30多年來有了不斷的改進、提高,在制藥、糧食加工等行業廣泛應用,如:原料藥、顆粒成藥、沖劑、飼料、塑料樹脂等粉狀、顆粒狀物料的除濕、干燥。物料粒徑可以在0.1-6mm范圍.,最佳為0.5-3rnm。
原理及特點
潔凈的熱風經閥板分配進入床體內,從加料器進入的濕物料被熱風形成流化狀態,如煮沸的開水在床體內跳躍,故稱為沸騰干燥器(或機),由于熱風與物料廣泛接觸,因此在較短時間內就可以干燥。從床體的一頭進入,經過幾分鐘至幾十分鐘時間的“沸騰”,自動從床體的另一頭流出。蒸汽或電加熱,也可用燃油(或燃煤)的熱風爐直接得到熱風。可實行自動化生產,是連續式干燥設備。干燥速度快,溫度低,能保證生產質量,符合藥品生產GMP要求。
主要技術參數
干燥能力
外形尺寸 長x寬x高
風機
進風溫度
出料溫度
加熱耗能
功率(KW)
風壓(Pa)
風量(m'/h)
蒸汽(kg/h)
電(kw)
20-25
2600x800x2800
11
7100
3600
60-140
40-80
100
60
2600x800x3000
11
7100
3600
100
60
30-45
2600x1000x2800
22
7400
7100
200
120
2600x1000x3000
22
7400
7100
200
120
50-80
5000x1200x3300
55
8600
13500
400
240
5000x1200x3500
55
8600
13500
400
240
120-150
6000x1200x3300
75
9300
18400
600
360
6000x1200x4000
75
9300
18400
600
360

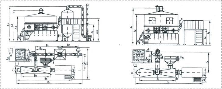
XF-A 系列尺寸參考表
|
型號 |
A1 | A2 | A3 | A4 | A5 | A6 | A7 | A8 | A9 | A10 | B1 | B2 | B3 | B4 | B5 | B6 | B7 | C1 | C2 | C3 | C4 | C5 |
|
XF-10A |
3500 | 2800 | 2300 | 700 | 700 | 120 | 900 | 600 | 1400 | 2200 | 1700 | 1900 | 500 | 1500 | 110 | 4000 | 4700 | 700 | 700 | 1200 | 2000 | 4000 |
|
XF-20A |
4110 | 3100 | 2500 | 800 | 800 | 120 | 900 | 600 | 1600 | 2400 | 1900 | 2200 | 650 | 2000 | 110 | 4660 | 5900 | 800 | 800 | 1500 | 2200 | 4745 |
|
XF-30A |
4750 |
3500 | 2700 | 800 | 800 |
120 |
900 |
650 |
1600 |
2400 |
2200 | 2200 | 1200 | 2500 | 130 | 5100 | 6000 | 1000 | 1000 | 1800 | 2500 | 5400 |
|
XF-50A |
5000 | 3900 | 3500 | 800 | 800 |
120 |
900 |
700 |
1800 |
2600 | 2700 | 2500 | 1700 | 3000 | 150 | 6200 | 6500 | 1200 | 1200 | 2000 | 2800 | 6000 |
XF-A 系列接口表
|
型號 |
a | b | c | d | e | f |
|
加料 |
出料 |
出料 |
蒸汽進囗 |
水冷出口 |
出料 | |
|
XF-10A |
300x400 |
60x120 |
320x320 |
Dg20 |
Dg20 |
?150 |
|
XF-20A |
320x430 |
60x120 |
320x320 |
Dg20 |
Dg20 |
?150 |
|
XF-30A |
350x450 |
120x240 |
320x320 |
Dg25 |
Dg25 |
?200 |
|
XF-50A |
400x480 |
120x240 |
320x320 |
Dg40 |
Dg25 |
?200 |
|
型號 |
A1 | A2 | A3 | A4 | A5 | A6 | A7 | B1 | B2 | B3 | C1 | C2 | C3 | C4 |
|
XF-10B |
3000 | 2300 |
800 |
1400 | 2200 |
120 |
900 |
1500 | 110 | 4000 | 700 | 700 | 1300 | 3000 |
|
XF-20B |
3300 | 2400 |
800 |
1600 | 2400 |
120 |
900 |
2000 | 110 | 4600 | 800 | 800 | 1500 | 3500 |
|
XF-30B |
3500 | 2800 |
800 |
1600 |
2400 |
120 |
900 |
2500 | 130 | 5100 | 1000 | 1000 | 1800 | 3900 |
|
XF-50B |
3900 | 3100 |
800 |
1800 | 2600 |
120 |
900 |
3000 | 150 | 6200 | 1200 | 1200 | 3000 | 4500 |
XF-B 系列接口表
|
型號 |
a | b | c | d |
|
加料 |
出料 |
出料 |
蒸汽進囗 |
|
|
XF-10B |
300x400 |
60x120 |
320x320 |
Dg20 |
|
XF-20B |
320x430 |
60x120 |
320x320 |
Dg20 |
|
XF-30B |
350x450 |
120x240 |
320x320 |
Dg25 |
|
XF-50B |
400x480 |
120x240 |
320x320 |
Dg40 |
地址:江蘇省江陰市祝塘鎮工業園新莊路111號
電話:0510-86006569
公司網址:www.up2top.cn
聯系郵箱:13961632622@163.com